嘉峪关市致腾新能源有限公司关城加能站建设项目规划设计方案公示

发布日期:2025-09-09 14:57 浏览次数: 信息来源:嘉峪关市自然资源局

嘉峪关市致腾新能源有限公司向嘉峪关市自然资源局提出关于嘉峪关市致腾新能源有限公司关城加能站建设项目规划设计方案审核的申请,根据《中华人民共和国城乡规划法》、《嘉峪关市城乡规划公开公示实施细则》规定,为增加城乡规划透明度,现对该项目规划设计方案进行公示,征求利害关系人意见,利害关系人对公示内容有异议的可在公示期内向我局反映,公示内容如下:

一、符合国土空间总体规划情况

该项目符合《嘉峪关市国土空间总体规划(2021-2035年)》

二、建设项目基本情况

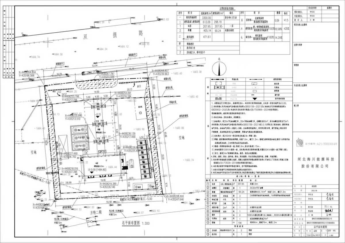
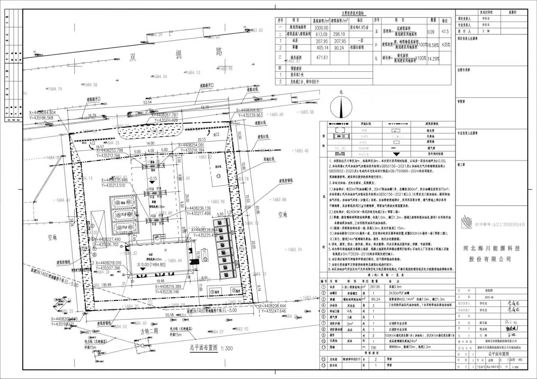
1、项目名称:嘉峪关市致腾新能源有限公司关城加能站建设项目

2、建设单位:嘉峪关市致腾新能源有限公司

3、建设项目位置:嘉峪关市双拥路与圆博路十字路口东南处

4、用地性质:商业用地

5、用地面积:3300 ㎡

6、建筑总面积:298.19 ㎡,建筑总计容面积:298.19㎡

7、容积率:0.09

8、建筑系数18.58%

9、绿地率:14.29%

10、建筑层数:地上1F

11、建筑高度:8.35m

三、公示日期 2025年99日至2025年917日)

四、公示期限:7个工作日

五、有效期反馈意见方式:来电或以书面形式(须注明联系人姓名、联系地址、联系电话)反馈至市自然资源局国土空间规划管理科。

六、联系电话:0937- 6306216

                             嘉峪关市自然资源局

             2025年98