酒嘉绕城高速嘉峪关服务区加油加气南站建设项目设计方案公示

发布日期:2025-03-17 15:46 浏览次数: 信息来源:嘉峪关市自然资源局

公航旅石化能源(嘉峪关)有限公司向嘉峪关市自然资源局提出关于酒嘉绕城高速嘉峪关服务区加油加气南站建设项目规划设计方案审核的申请,根据《中华人民共和国城乡规划法》、《嘉峪关市城乡规划公开公示实施细则》规定,为增加城乡规划透明度,现对该项目规划设计方案进行公示,征求利害关系人意见,利害关系人对公示内容有异议的可在公示期内向我局反映,公示内容如下:

一、符合国土空间总体规划情况

该项目符合《嘉峪关市国土空间总体规划(2021-2035年)》

二、建设项目基本情况

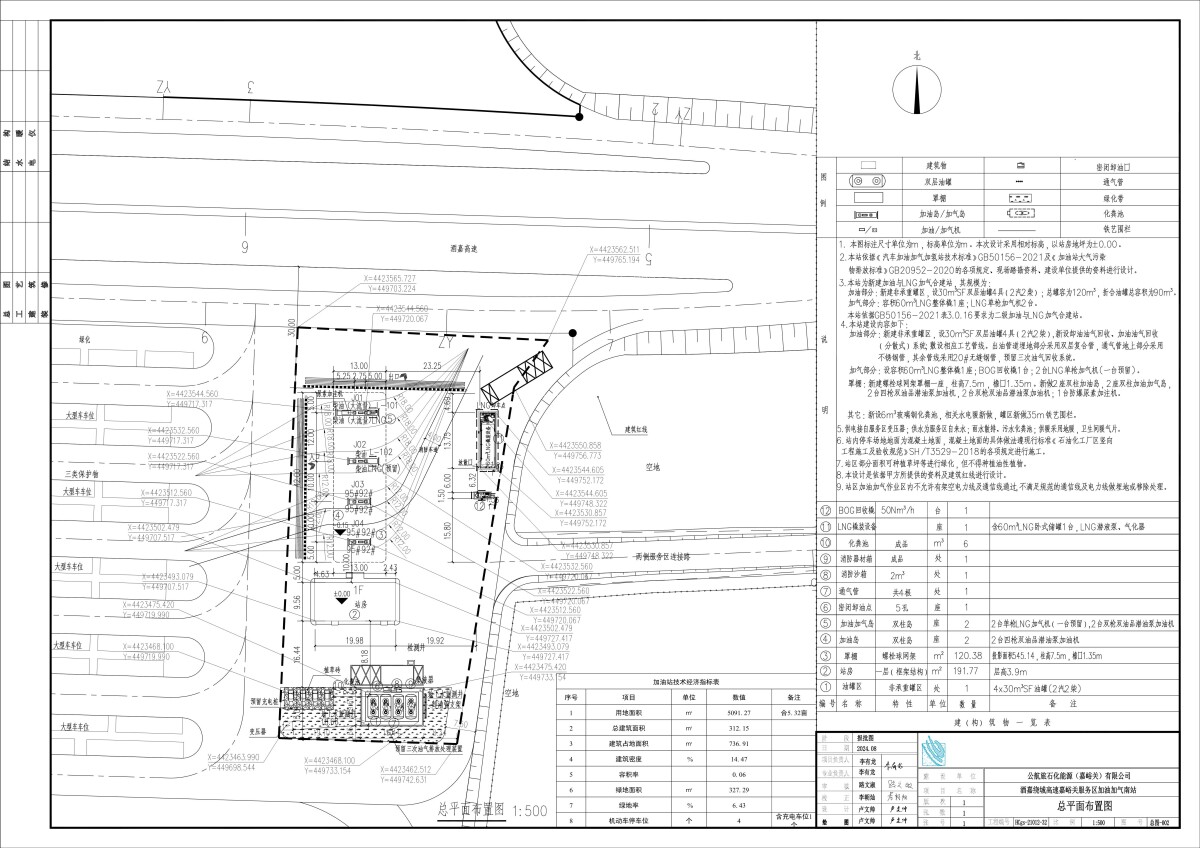
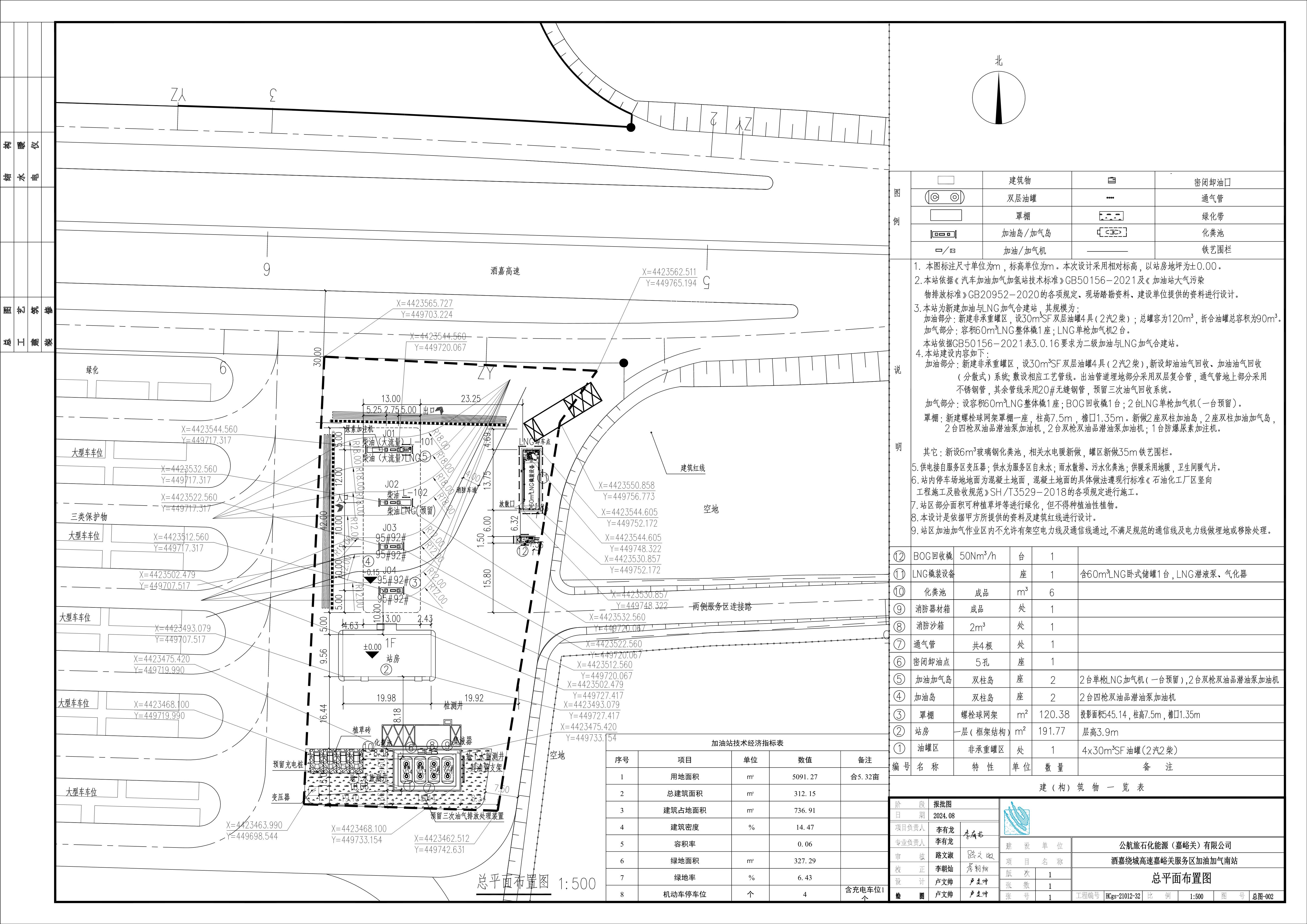
1、项目名称:酒嘉绕城高速嘉峪关服务区加油加气南站建设项目

2、建设单位:公航旅石化能源(嘉峪关)有限公司

3、建设项目位置:甘肃省嘉峪关市酒泉至嘉峪关绕城高速公路嘉峪关服务区南侧

4、用地性质:公用设施营业网点用地 

5、用地面积:5091.27

6、建筑面积:312.15㎡

7、容积率:0.06

8、建筑密度:14.47%

9、绿地率:6.43%

10、建筑层数:地上1层

11、建筑高度:4.5m

三、公示日期 20253月18日至2025327日)

四、公示期限:7个工作日

五、有效期反馈意见方式:来电或以书面形式(须注明联系人姓名、联系地址、联系电话)反馈至市自然资源局国土空间规划管理科。

六、联系电话:0937- 6306216  

 

 

                                      嘉峪关市自然资源局

         2025317