8万吨/年含镍、铬废料无害化处置及资源综合利用改造升级项目设计方案公示

发布日期:2025-07-09 17:00 浏览次数: 信息来源:嘉峪关市自然资源局

甘肃联治必拓再生资源有限公司向嘉峪关市自然资源局提出关于8万吨/年含镍、铬废料无害化处置及资源综合利用改造升级项目规划设计方案审核的申请,根据《中华人民共和国城乡规划法》、《嘉峪关市城乡规划公开公示实施细则》规定,为增加城乡规划透明度,现对该项目规划设计方案进行公示,征求利害关系人意见,利害关系人对公示内容有异议的可在公示期内向我局反映,公示内容如下:

一、符合国土空间总体规划情况

该项目符合《嘉峪关市国土空间总体规划(2021-2035年)》

二、建设项目基本情况

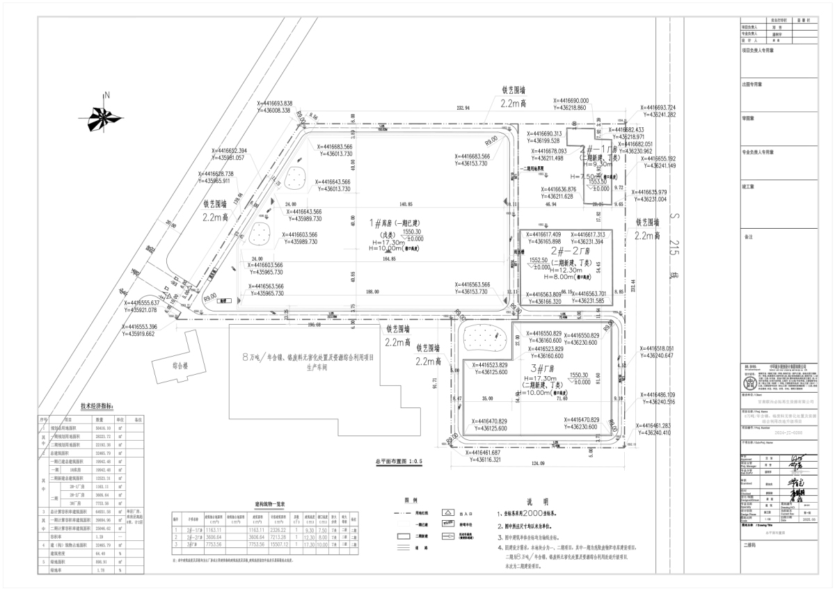
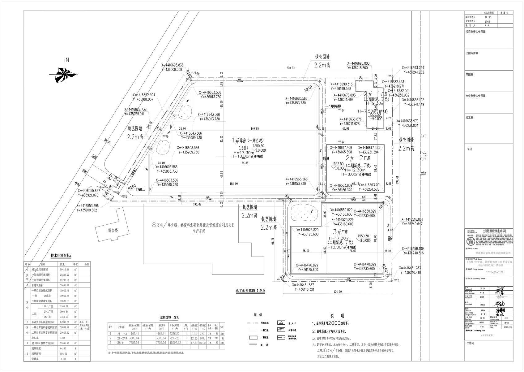
1、项目名称:8万吨/年含镍、铬废料无害化处置及资源综合利用改造升级项目

2、建设单位:甘肃联治必拓再生资源有限公司

3、建设项目位置:嘉峪关市嘉北工业园区

4、用地性质:工业用地

5、用地面积:50416.1

6、建筑面积:12523.31

7、容积率:1.29

8、建筑密度:64.4%

9、绿地率:1.78%

10、建筑层数:地上1层

11、建筑高度:9.3 m -17.3m

三、公示日期 2025年7月10日至2025年7月18日)

四、公示期限:7个工作日

五、有效期反馈意见方式:来电或以书面形式(须注明联系人姓名、联系地址、联系电话)反馈至市自然资源局国土空间规划管理科。

六、联系电话:0937- 6306216  

 

 

                                      嘉峪关市自然资源局

         2025年7月9日