综合开发利用石墨烯、锂矿暨多种矿体加工纳米材料建设项目设计方案公示

发布日期:2025-07-14 16:35 浏览次数: 信息来源:嘉峪关市自然资源局

甘肃科曼达环保科技有限公司向嘉峪关市自然资源局提出关于综合开发利用石墨烯、锂矿暨多种矿体加工纳米材料建设项目规划设计方案审核的申请,根据《中华人民共和国城乡规划法》、《嘉峪关市城乡规划公开公示实施细则》规定,为增加城乡规划透明度,现对该项目规划设计方案进行公示,征求利害关系人意见,利害关系人对公示内容有异议的可在公示期内向我局反映,公示内容如下:

一、符合国土空间总体规划情况

该项目符合《嘉峪关市国土空间总体规划(2021-2035年)》

二、建设项目基本情况

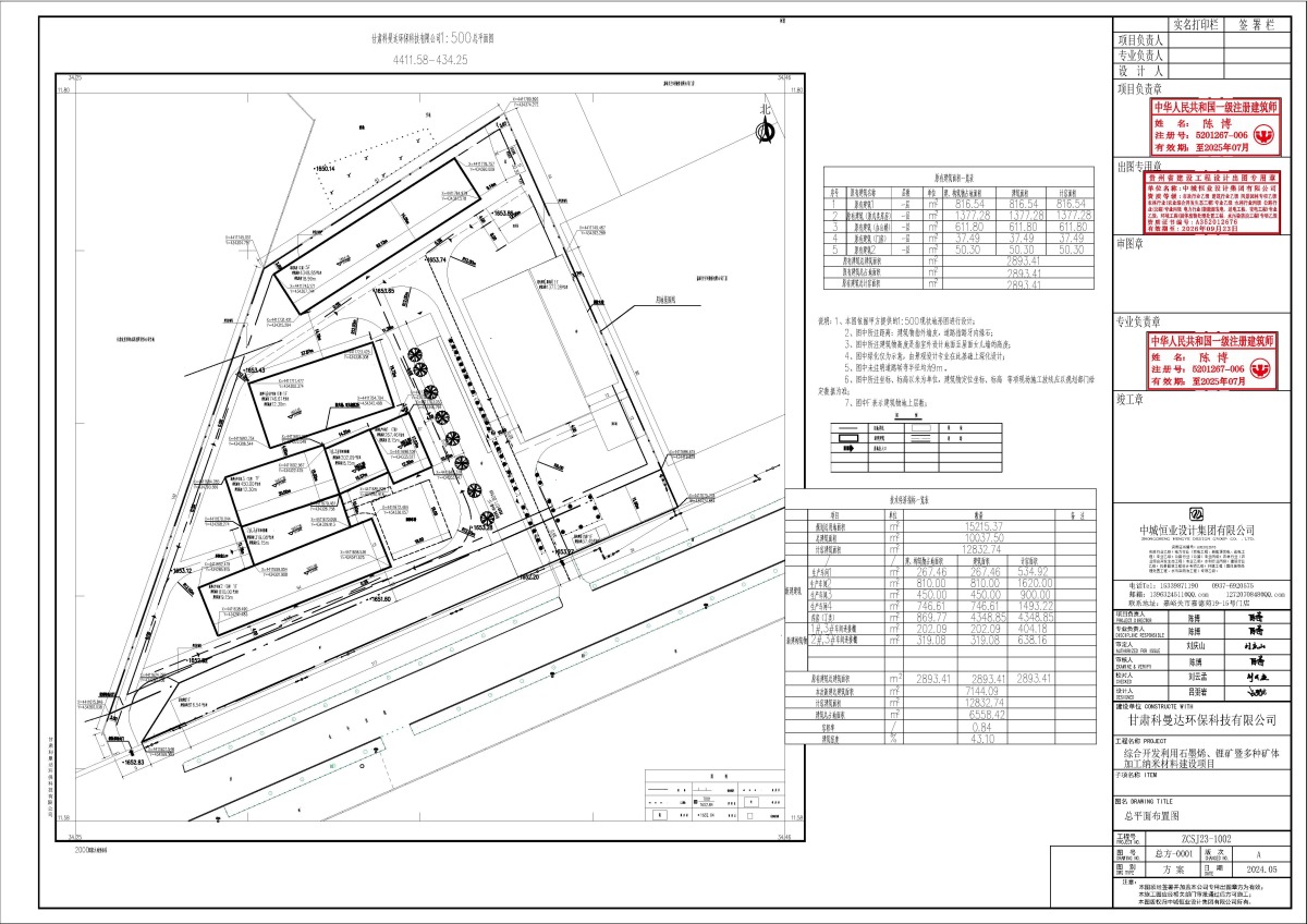
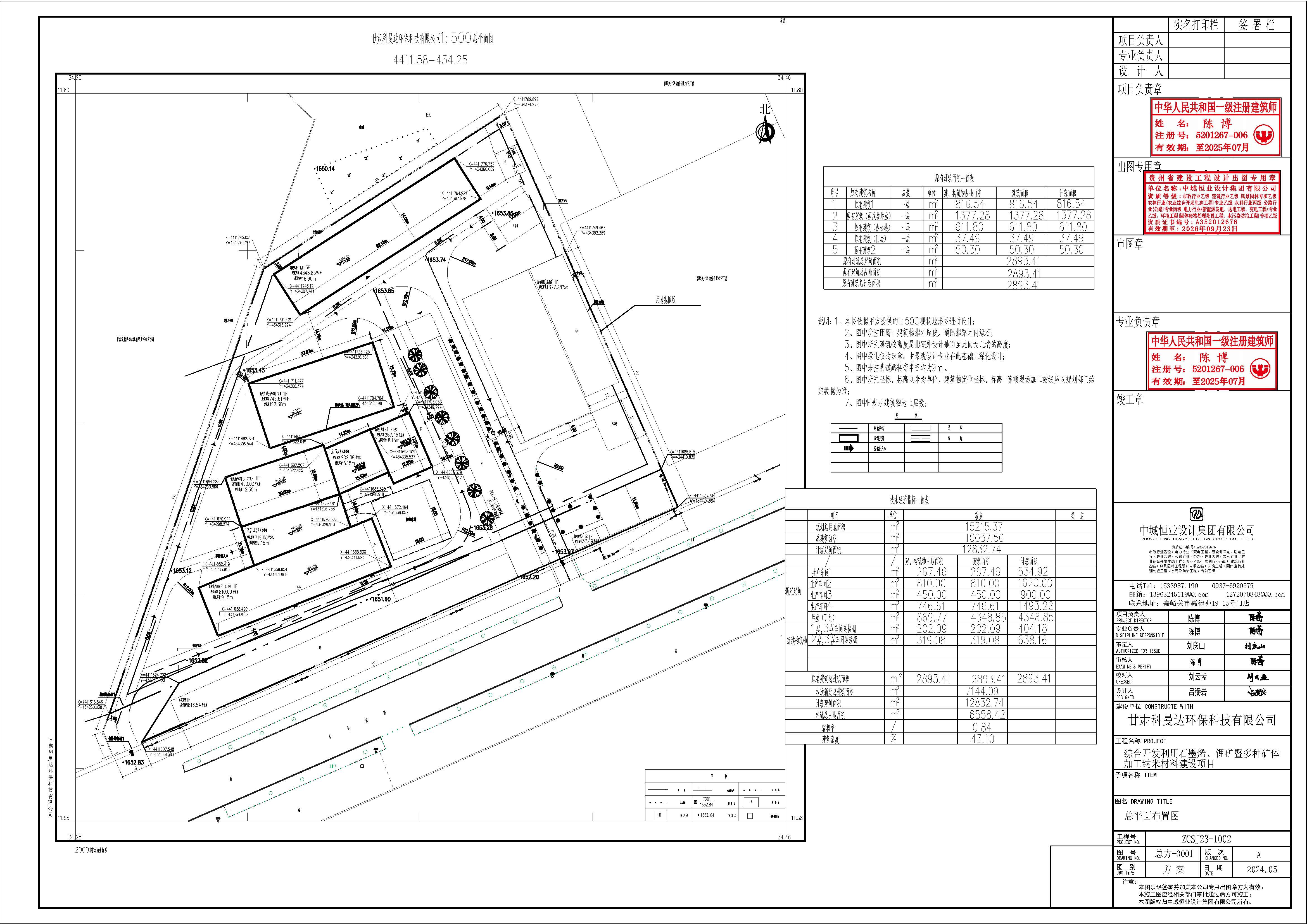
1、项目名称:综合开发利用石墨烯、锂矿暨多种矿体加工纳米材料建设项目

2、建设单位:甘肃科曼达环保科技有限公司

3、建设项目位置:嘉峪关市嘉北工业园区金华西路北侧、西苑路西侧。

4、用地性质:工业用地                                                                                                                                                                                                                                                                                                  

5、用地面积:15215.37

6、总建筑面积:7144.09本次新建

7、容积率:0.84

8、建筑密度:43.10%

9、绿地率:/

10、建筑层数:地上1-5层。

11、建筑高度:8.15-18.90m

三、公示日期 2025年7月15日至2025年7月23日)

四、公示期限:7个工作日

五、有效期反馈意见方式:来电或以书面形式(须注明联系人姓名、联系地址、联系电话)反馈至市自然资源局国土空间规划管理科。

六、联系电话:0937-6306216  

 

 

                                      嘉峪关市自然资源局

         2025年7月15日