润泽公馆商品住宅楼六期(调整)项目规划方案公示

发布日期:2024-04-23 17:21 浏览次数: 信息来源:嘉峪关市自然资源局

嘉峪关润业房地产开发有限责任公司向嘉峪关市自然资源局提出关于润泽公馆商品住宅楼六期(调整)项目规划设计方案审核的的申请,根据《中华人民共和国城乡规划法》、《嘉峪关市城乡规划公开公示实施细则》规定,为增加城乡规划透明度,现对该项目设计方案进行公示,征求利害关系人意见,利害关系人对公示内容有异议的可在公示期内向我局反映,公示内容如下:

一、符合城市规划情况

该项目符合《嘉峪关市城市总体规划(2016-2030年)》

二、建设项目基本情况

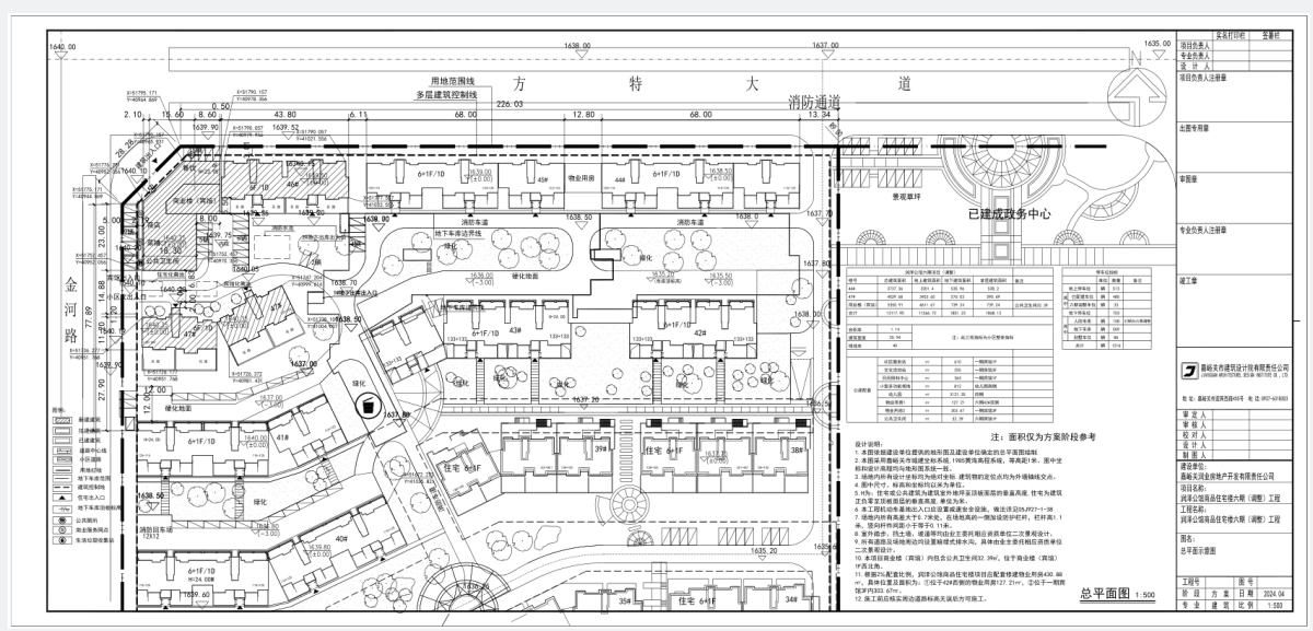
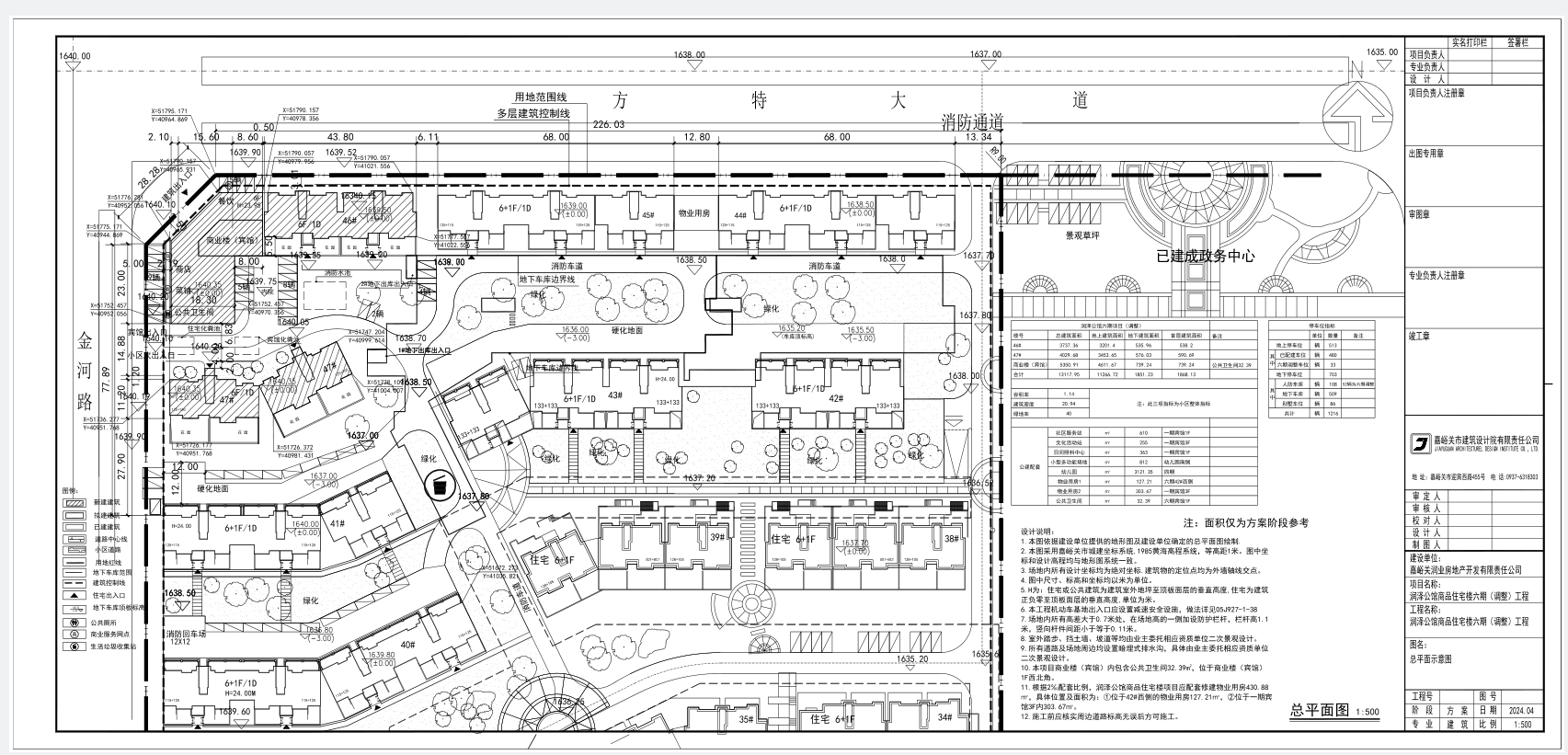
1、项目名称:润泽公馆商品住宅楼六期(调整)项目

2、建设单位:嘉峪关润业房地产开发有限责任公司

3、建设项目位置:南市区

4、用地性质:商住用地

5、用地面积:139980m2

6、建筑面积:216440.76m2   其中地上建筑面积158891.36m2,地下建筑面积57549.4m2。

7、容积率:1.14

8、建筑密度:20.94%

9、绿地率:40%

10、调整内容:将原设计6期商业方案调整为4个单元的住宅楼2栋及1栋商业。

三、公示日期 2024年4月23日至2024年4月30日)

四、公示期限:7个工作日

五、有效期反馈意见方式:来电或以书面形式(须注明联系人姓名、联系地址、联系电话)反馈至市自然资源局规划管理科。

六、联系电话:0937- 6306216  

 

 

                                          嘉峪关市自然资源局

             2024年4月23日