嘉泽鸿家园项目规划设计方案公示

发布日期:2024-07-18 17:19 浏览次数: 信息来源:嘉峪关市自然资源局

《嘉泽鸿家园》方案经过多次征询曙光街区群众代表意见后,根据群众代表意见已要求嘉峪关嘉泽鸿房地产开发有限公司对设计方案进行调整完善,现将调整完善后的方案进行公示

一、符合国土空间总体规划情况

该项目符合《嘉峪关市国土空间总体规划(2021-2035年)》

二、建设项目基本情况

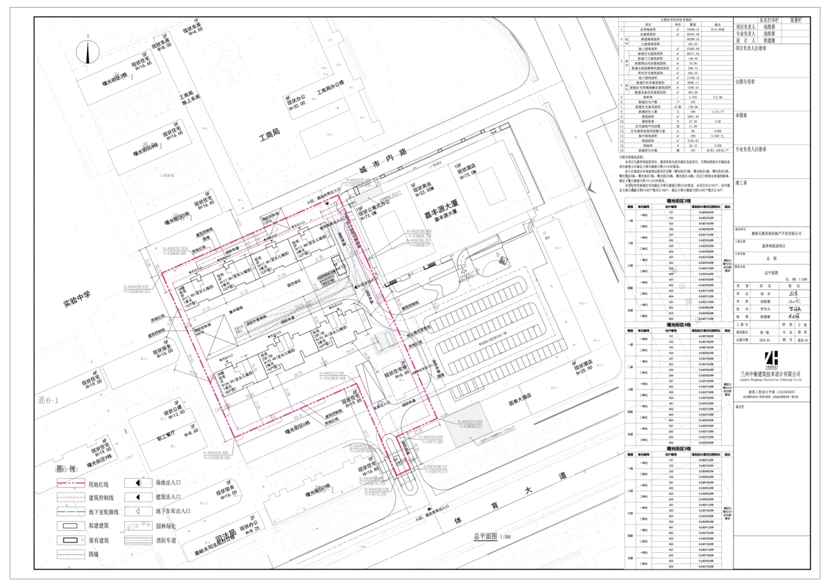
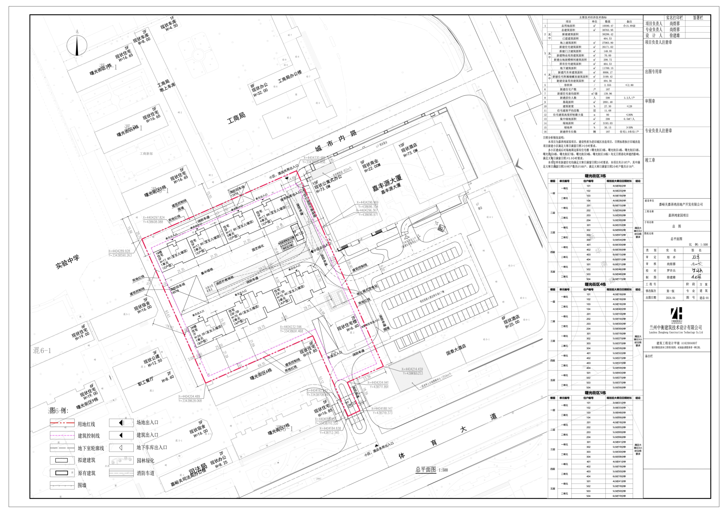
1、项目名称:嘉泽鸿家园项目

2、建设单位:嘉峪关嘉泽鸿房地产开发有限公司

3、建设项目位置:嘉峪关市体育大道北侧、新华南路西侧

4、用地性质:城镇住宅用地                                                                                                                                                                                                                                                                                                

5、用地面积:10590.47㎡

6、建筑面积:38344.45㎡

7、容积率:2.516

8、建筑密度:26.03%

9、绿地率:30.15%

10、建筑层数:地上1-23层,地下1-2层

11、建筑高度:4.8m -70.3m

三、公示日期 (2024年7月18日至2024年7月26日)

四、公示期限:7个工作日

五、有效期反馈意见方式:来电或以书面形式(须注明联系人姓名、联系地址、联系电话)反馈至市自然资源局国土空间规划管理科。

六、联系电话:0937- 6306216  

      嘉峪关市自然资源局

         2024年7月18日