《甘肃酒钢宏兴宏翔能源有限责任公司3#4#焦炉化产系统安全隐患整治及VOCs 绿色化治理项目》批后公布

发布日期:2025-06-06 17:33 浏览次数: 信息来源:嘉峪关市自然资源局

《甘肃酒钢宏兴宏翔能源有限责任公司3#4#焦炉化产系统安全隐患整治及VOCs 绿色化治理项目》批后公布

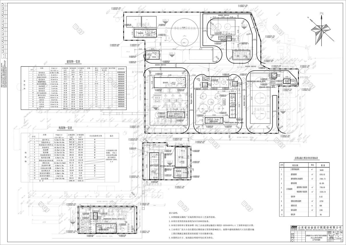
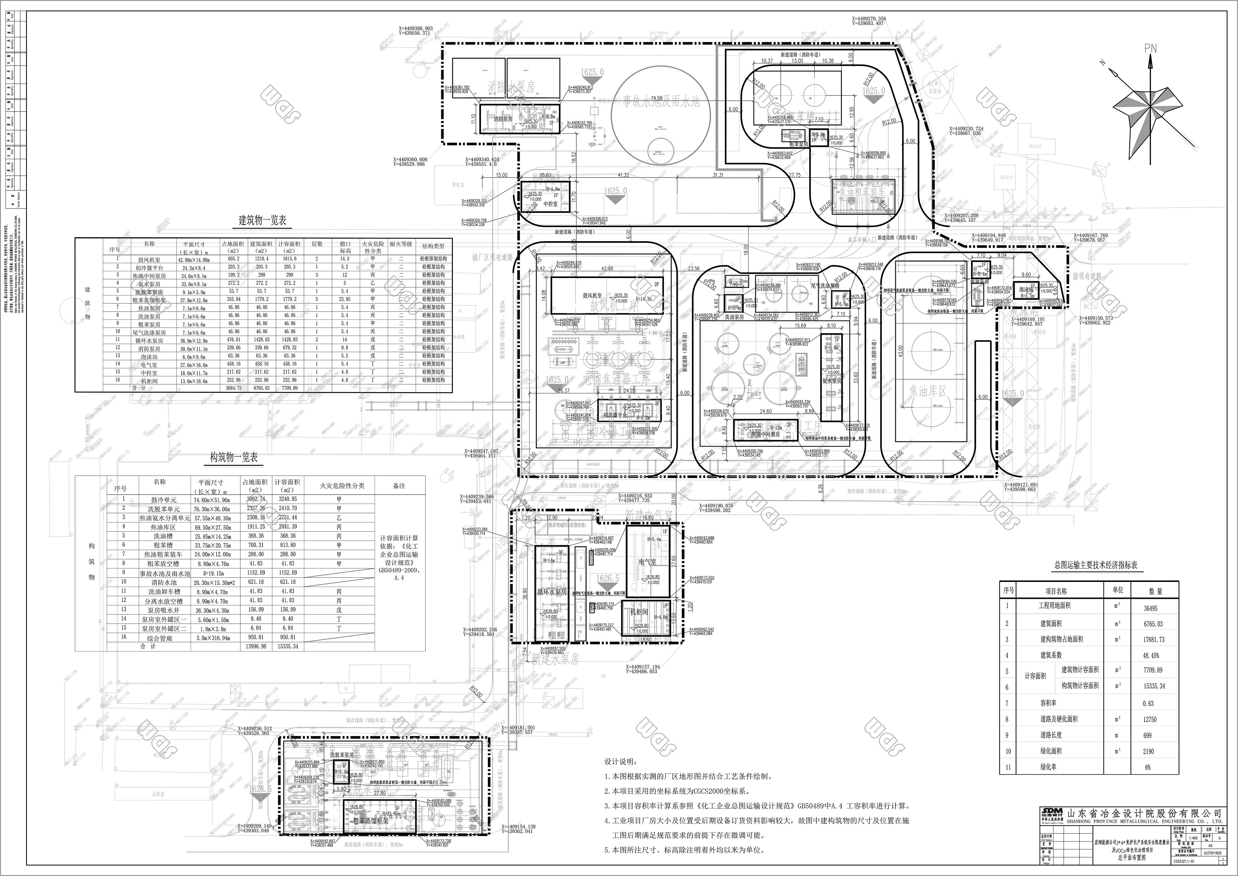
依据《中华人民共和国城乡规划法》、《甘肃省建设项目规划许可办法》(省政府169号令)有关规定,现将甘肃酒钢宏兴宏翔能源有限责任公司3#4#焦炉化产系统安全隐患整治及VOCs 绿色化治理项目建设工程规划许可证、总平面图、鸟瞰图予以公布,敬请社会各界监督。监督电话:0937-6306216。

建设单位:甘肃酒钢宏兴宏翔能源有限责任公司

   建设位置:甘肃酒钢宏兴宏翔能源有限责任公司区域

   建设规模:6765.03平方米

工程证号:建字第620200202500020