《嘉峪关雄关快递有限公司仓储物流项目》批后公布

发布日期:2025-06-20 09:04 浏览次数: 信息来源:嘉峪关市自然资源局


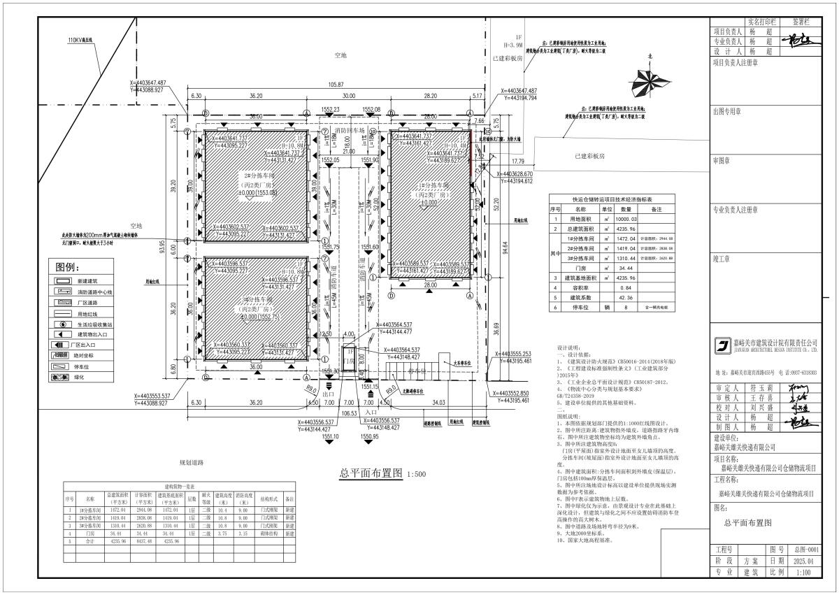
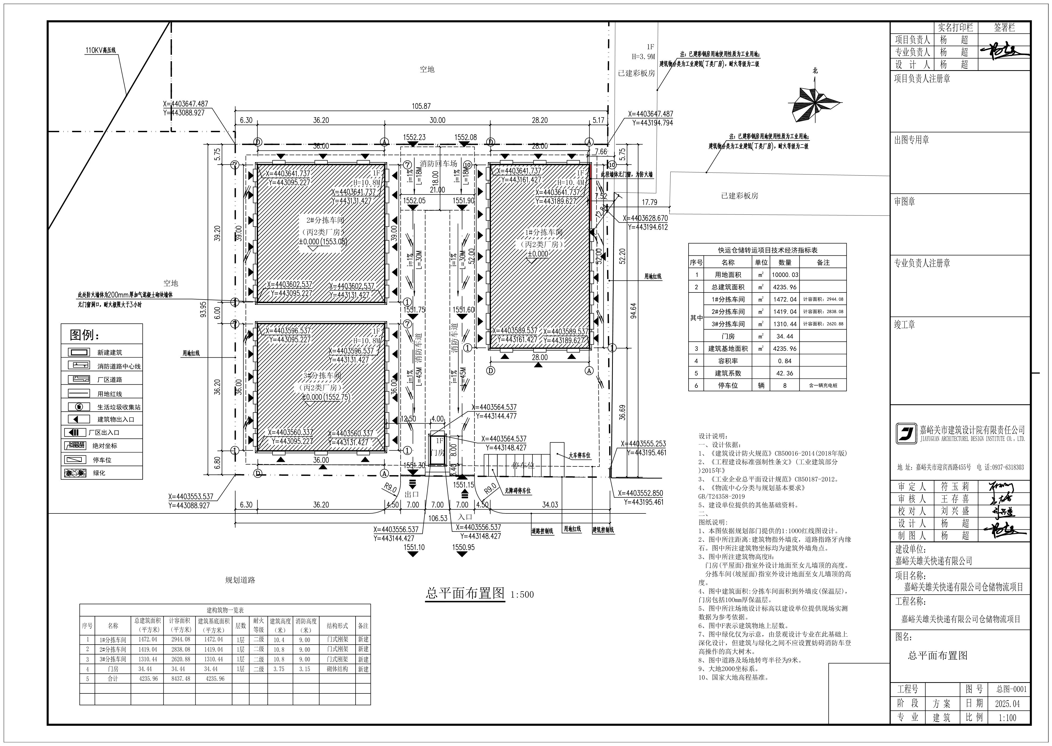
嘉峪关雄关快递有限公司仓储物流项目》批后公布


依据《中华人民共和国城乡规划法》、《甘肃省建设项目规划许可办法》(省政府169号令)有关规定,现将《嘉峪关雄关快递有限公司仓储物流项目》总平面图、鸟瞰图、建设工程规划许可证予以公布,敬请社会各界监督。监督电话:0937-6306216

建设单位:嘉峪关雄关快递有限公司

建设位置:明珠东路西北汽配城南侧

建设规模:4235.96平方米

证照编号:620200202500024



嘉峪关市自然资源局

2025620