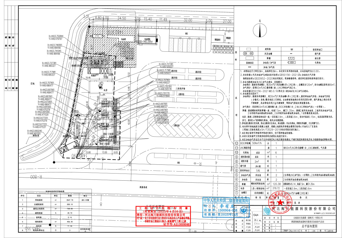
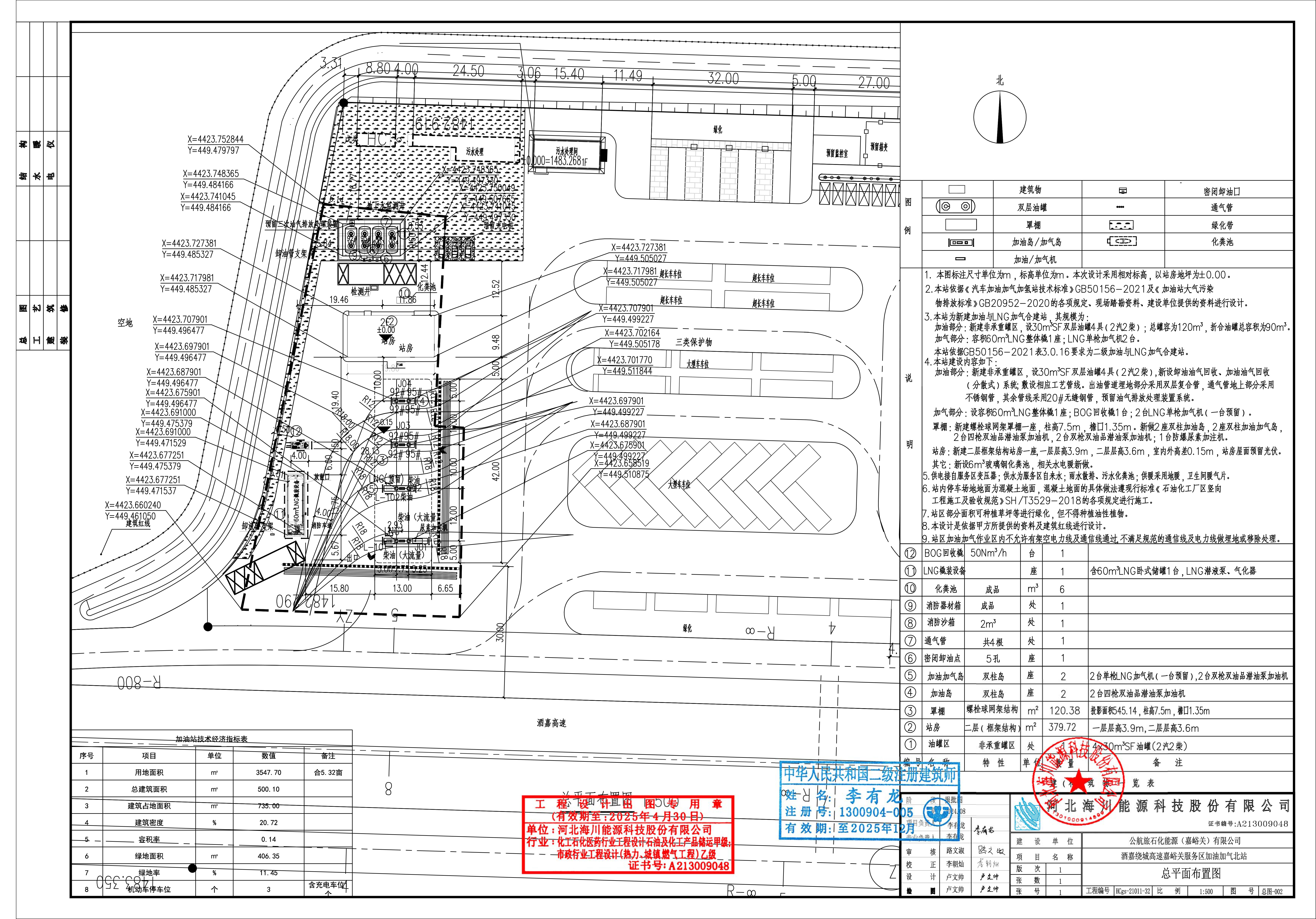
《酒嘉绕城高速嘉峪关服务区加油加气南北站(北区)》批后公布

发布日期:2025-07-07 15:06 浏览次数: 信息来源:嘉峪关市自然资源局

《酒嘉绕城高速嘉峪关服务区加油加气南北站(北区)批后公布

依据《中华人民共和国城乡规划法》、《甘肃省建设项目规划许可办法》(省政府169号令)有关规定,现将《酒嘉绕城高速嘉峪关服务区加油加气南北站(北区)》建设工程规划许可证、总平面图、鸟瞰图予以公布,敬请社会各界监督。监督电话:0937-6306216。

建设单位:甘肃公航旅酒嘉高速公路管理有限公司

   建设位置:嘉峪关市S06绕城高速嘉峪关服务区

   建设规模:500.10平方米

工程证号:建字第620200202500028