《酒钢富余煤气综合利用节能降碳项目》批后公布

发布日期:2024-12-18 15:40 浏览次数: 信息来源:嘉峪关市自然资源局

酒钢富余煤气综合利用节能降碳项目》批后公布

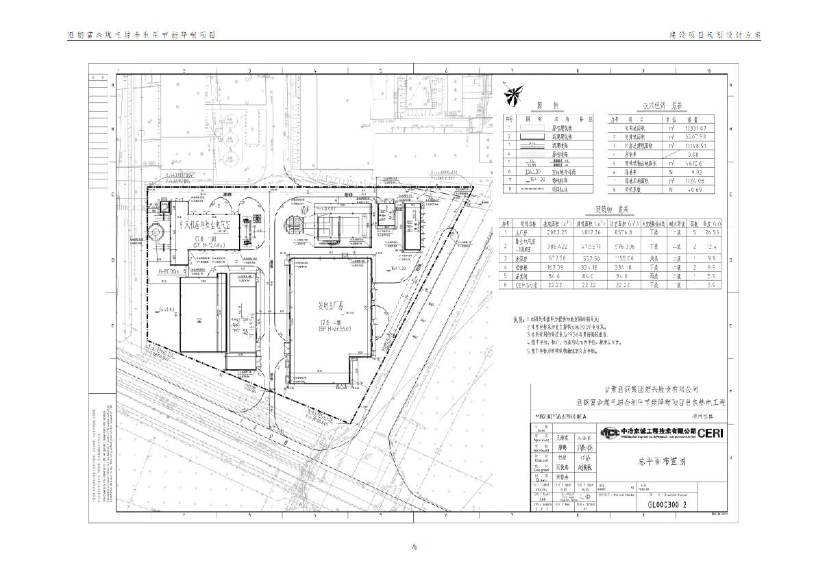
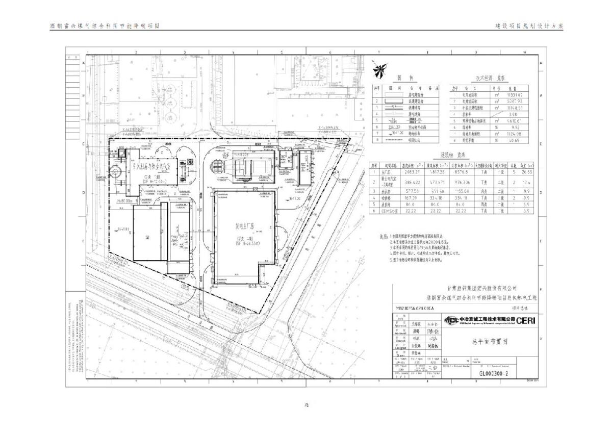
依据《中华人民共和国城乡规划法》、《甘肃省建设项目规划许可办法》(省政府169号令)有关规定,现将《酒钢富余煤气综合利用节能降碳项目》总平面图、鸟瞰图、建设工程规划许可证予以公布,敬请社会各界监督。监督电话:0937-6306216。

建设单位:甘肃酒钢集团宏兴钢铁股份有限公司

建设位置:嘉峪关市雄关东路12号酒钢冶金厂区内

建设规模:6307.93平方米

工程证号:建字第620200202400064

 

嘉峪关市自然资源局

2024年12月18