甘肃酒钢集团宏翔能源公司3#4#焦炉化产系统安全隐患整治及VOCs绿色化治理项目方案设计(调整)公示

发布日期:2026-03-05 09:26 浏览次数: 信息来源:嘉峪关市自然资源局

甘肃酒钢集团宏翔能源公司向嘉峪关市自然资源局提出关于甘肃酒钢集团宏翔能源公司3#4#焦炉化产系统安全隐患整治及VOCs绿色化治理项目方案设计(调整)审核的申请,根据《中华人民共和国城乡规划法》、《甘肃省建设项目规划许可办法》规定,为增加城乡规划透明度,现对《甘肃酒钢集团宏翔能源公司3#4#焦炉化产系统安全隐患整治及VOCs绿色化治理项目》方案设计(调整)进行公示,征求利害关系人意见,利害关系人对公示内容有异议的可在公示期内向我局反映,公示内容如下:

一、符合城市规划情况

该项目符合《嘉峪关市国土空间总体规划(2021-2035年)》。

二、建设项目基本情况

1.项目名称:甘肃酒钢集团宏翔能源公司3#4#焦炉化产系统安全隐患整治及VOCs绿色化治理项目

2.建设单位:甘肃酒钢集团宏翔能源公司

3.建设项目位置:甘肃省嘉峪关市宏翔能源公司厂区内

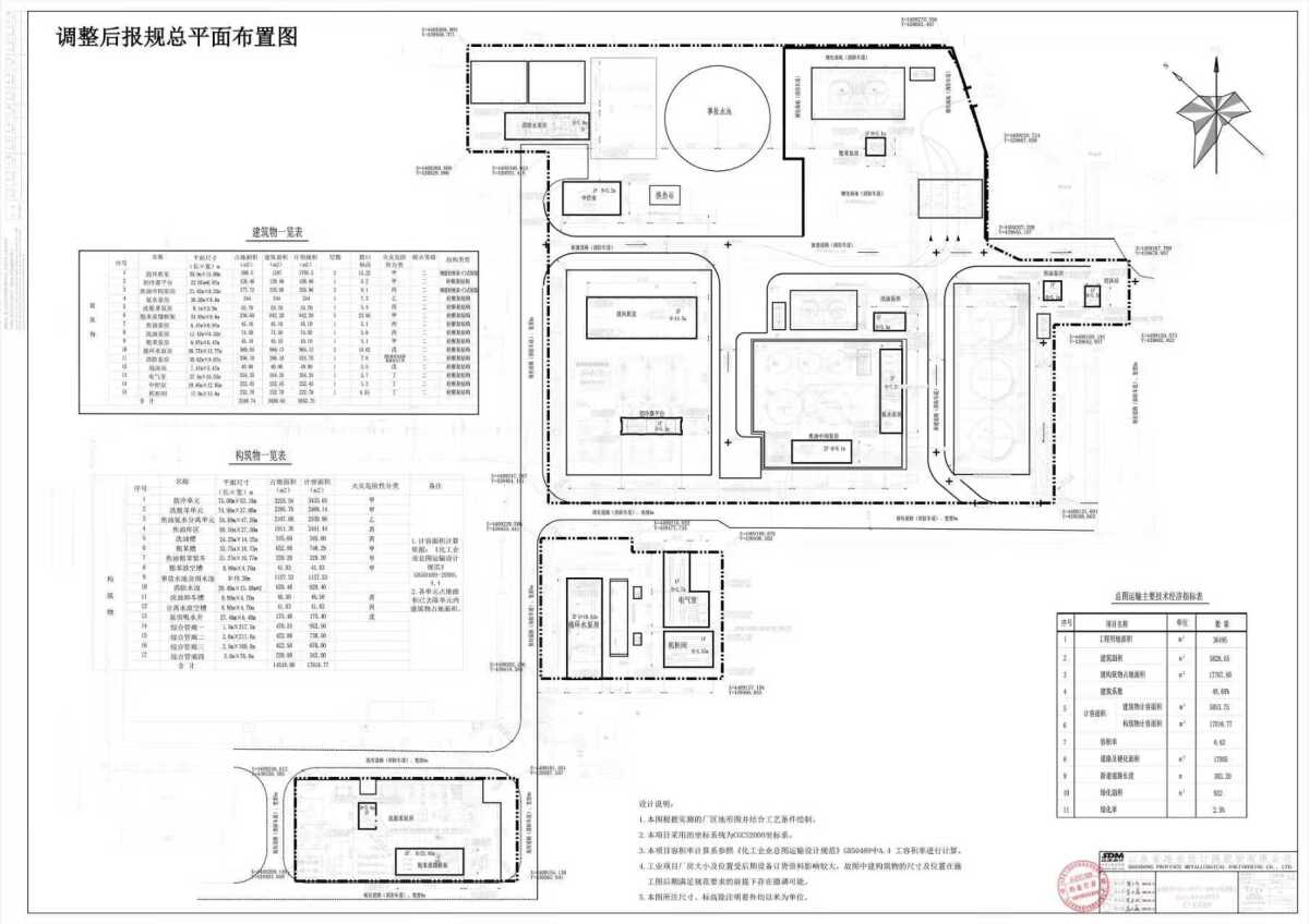
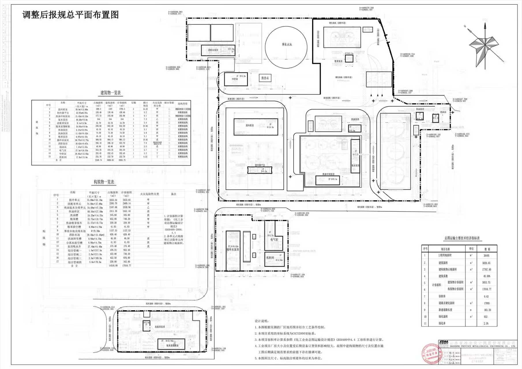
4.建筑总面积:6765.03㎡(原来)调整为5026.65㎡(修改后)

5.建筑高度:≤24m

6.绿地率:6%(原来)调整为2.5%(修改后)

三、方案调整情况

本次方案主要对建筑面积、建筑物外立面、场地绿化率进行优化调整,项目整体建设内容及核心工艺保持不变。原报规方案推进至施工图及实施阶段后,经现场实际勘查、工艺设备最终选型、各专业设计深化协同,结合施工可行性、生产安全性与经济合理性综合考量,对相关内容进行优化调整,具体情况如下:

1.建筑面积调整:因厂区存在未标注地下设施、现有生产设施交叉制约、场地地质条件与初勘存在差异、设备资料进一步细化及工期优化要求等因素,优化新建设施布局,各单体建构筑物实际建筑面积较报批面积减少,总图布置更紧凑。

2.建筑外立面调整:根据最终设备型式尺寸、管道走向及检修需求,结合总图微调后的现场环境,同时考虑材料确认、造价控制及性能要求,对建筑物门窗及设备洞口位置形式、主次入口、饰面材料及构造节点等进行适应性优化,更贴合厂区风貌及生产实际。

3.绿化率调整:因原报规阶段绿地面积计算未充分结合现场实际及工艺区域安全特性,实际调整为2.5%。符合工艺区域安全生产规范,避让了厂区复杂地下既有管线,提高了土地利用效率,绿化设计以点缀和功能为主。

总图位置及建构筑物布局微调后,各项技术指标均满足原规划条件审批要求。调整见总平面布置图及鸟瞰图。

四、公示日期

2026年3月6日至2026年3月16日

五、有效期反馈意见方式

来电或以书面形式(须注明联系人姓名、联系地址、联系电话)反馈至市自然资源局规划管理科。

六、联系电话0937-6306216

 

 

嘉峪关市自然资源局

2026年3月5日