嘉峪关市基督教堂新建及修缮有关项目方案设计(修改版)公示

发布日期:2026-01-29 16:22 浏览次数: 信息来源:嘉峪关市自然资源局

嘉峪关市基督教三自爱国运动委员会提出关于嘉峪关市基督教堂新建及修缮有关项目方案设计(修改版)的申请,根据《中华人民共和国城乡规划法》、《甘肃省建设项目规划许可办法》规定,为增加城乡规划透明度,现对嘉峪关市基督教堂新建及修缮有关项目方案设计(修改版)进行公示,征求利害关系人意见,利害关系人对公示内容有异议的可在公示期内向我局反映,公示内容如下:

一、符合城市规划情况

该项目符合《嘉峪关市国土空间总体规划(2021-2035年)》

二、建设项目基本情况

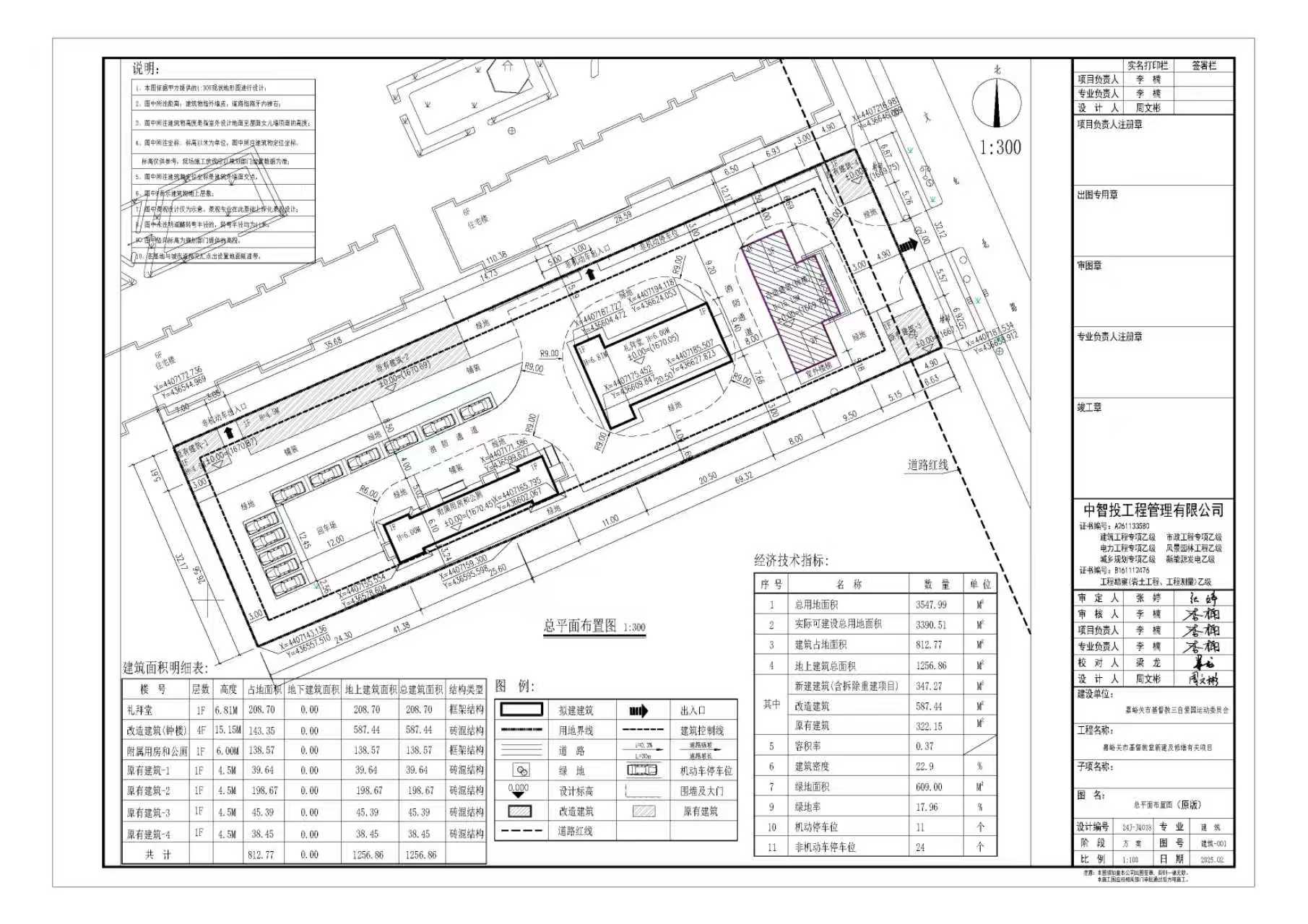
1.项目名称:嘉峪关市基督教堂原址重建及钟楼修缮项目

2.建设单位:嘉峪关市基督教三自爱国运动委员会

3.建设项目位置:嘉峪关市文化北路西侧,育才街区南侧,雄关消防救援支队北侧,嘉峪关市基督教堂院内

4.用地面积:3547.99㎡(实际可建设用地面积:3390.51㎡)

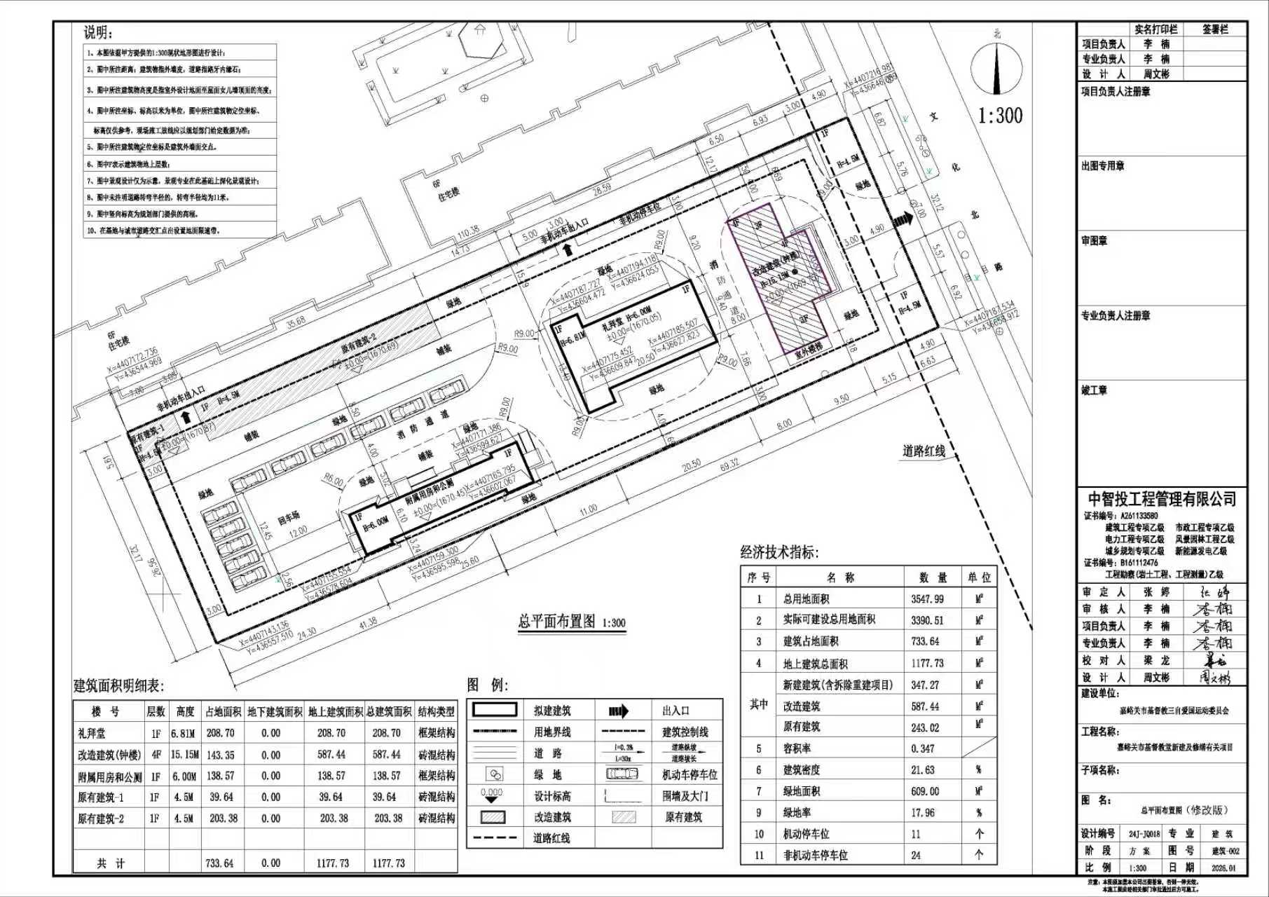
5.建筑面积:1256.86原来调整为1177.73㎡(修改后),其中新建建筑(含拆除重建项目)347.27㎡,改造建筑面积:587.44㎡,原有建筑:243.02㎡        

6.建筑高度:15.15m

7.容积率:0.37(原来)调整为0.347(修改后)

8.建筑密度:22.9%原来调整为21.63%(修改后)

三、方案调整情况

本次方案因市政道路红线退距,实际可建设用地面积为3390.51平方米。

该项目规划设计阶段将原有建筑3(建筑面积45.39平方米)、原有建筑4(建筑面积38.45平方米)计入了规划技术指标。原有建筑3、原有建筑4位于道路红线内,故此两栋原有建筑物可不计入本项目规划技术指标,规划技术指标核算采用实际可建设用地面积3390.51平方米。原规划设计总平面图及设计方案须以此重新调整。调整见总平面布置图。

四、公示日期

2026年1月30日至2026年2月9日

五、有效期反馈意见方式

来电或以书面形式(须注明联系人姓名、联系地址、联系电话)反馈至市自然资源局规划管理科。

六、联系电话:0937-6306216

 

嘉峪关市自然资源局

             2026129