书香名邸小区建设项目规划设计方案调整的公示

发布日期:2025-11-24 11:09 浏览次数: 信息来源:嘉峪关市自然资源局

甘肃嘉众通房地产开发有限公司向嘉峪关市自然资源局提出关于书香名邸小区建设项目设计方案调整的申请,根据《中华人民共和国城乡规划法》、《嘉峪关市城乡规划公开公示实施细则》规定,为增加城乡规划透明度,现对该项目方案调整进行公示,征求利害关系人意见,利害关系人对公示内容有异议的可在公示期内向我局反映,公示内容如下:

一、符合国土空间总体规划情况

该项目符合《嘉峪关市国土空间总体规划(2021-2035年)》

二、建设项目基本情况

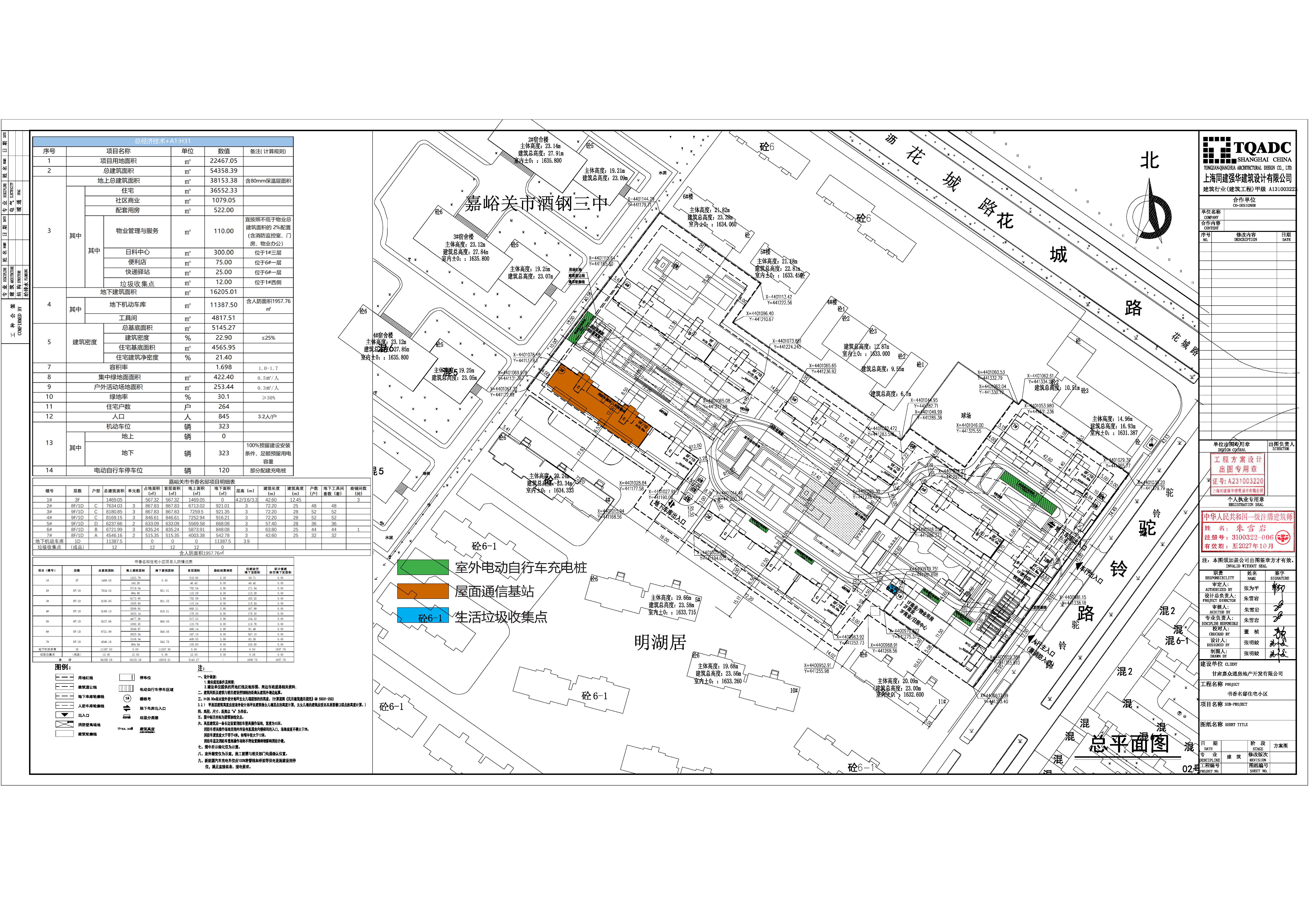
1、项目名称:书香名邸小区建设项目

2、建设单位:甘肃嘉众通房地产开发有限公司

3、建设项目位置:嘉峪关市中心城区南城片区,明湖居住宅小区北侧,酒钢三中东侧,社区卫生服务中心和嘉峪关子女教育食宿站南侧、驼铃路西侧。

4、用地性质:城镇住宅用地

5、用地面积:22467.05

6、建筑面积:54358.39㎡,其中地上建筑面积为38153.38㎡,地下建筑面积为16205.01㎡。

7、容积率:1.698

8、建筑密度:22.90%

9、绿地率:30.1%

10、建筑层数:主要为2-7#住宅楼和1#商业、配套用房组成。1#商业、配套用房:地上3 层,为低层公共建筑;2#、6#、7# 住宅楼:地上8层,地下1层,为多层住宅;3#、4#、5# 住宅楼:地上 9 层,地下 1 层,为高层住宅。

11、建筑高度:12.45-28.00m

12、日照分析

结论:本小区住宅均满足至少一个房间大寒日三小时日照标准要求。

受影响建筑军人子女食宿站 5#、6# 楼满足日照要求;

酒钢三中 2# 宿舍楼首层 3 个窗、3# 宿舍楼首层 5 个窗不满足大寒日 3 小时日照。超过半数以上居室满足日照要求,符合《宿舍建筑设计规范》JGJ36-2016 中 4.1.3 条:宿

舍半数以上居室具有良好朝向的相关要求。

三、公示日期 202511月24日至2025122日)

四、公示期限:7个工作日

五、有效期反馈意见方式:来电或以书面形式(须注明联系人姓名、联系地址、联系电话)反馈至市自然资源局国土空间规划管理科。

六、联系电话:0937-6306216  

 

 

                                      嘉峪关市自然资源局

         20251124